美的国宾府

4200元/㎡
开发商 : 宁乡君健房地产开发有限公司
开盘时间 : 2023年7月6日2023年7月6日
类型 : 住宅
主力户型 :二居室,三居室,四居室
楼盘地址 : 宁乡金洲大道与谐园路交汇处(近南雅蓝月谷中学)
苦苦寻找楼盘信息?不如一个电话全部搞定

4008883115,1666

楼盘动态

查看更多
  • 楼盘动态

    美的国宾府后面新品暂未开建,目前在售110平、114平、116平、126平毛坯住宅,均价4100-4300元/平。一房一价,具体请以案场为准。

  • 楼盘动态

    美的国宾府在售建面110平、116平、126平、136平毛坯现房住宅,均价4300-4800元/平。

户型介绍

  • 全部户型
  • 3室2厅1厨2卫
  • 4室2厅1厨2卫
  • 4室2厅1厨2卫
  • 4室2厅1厨2卫
  • 3室2厅1厨2卫

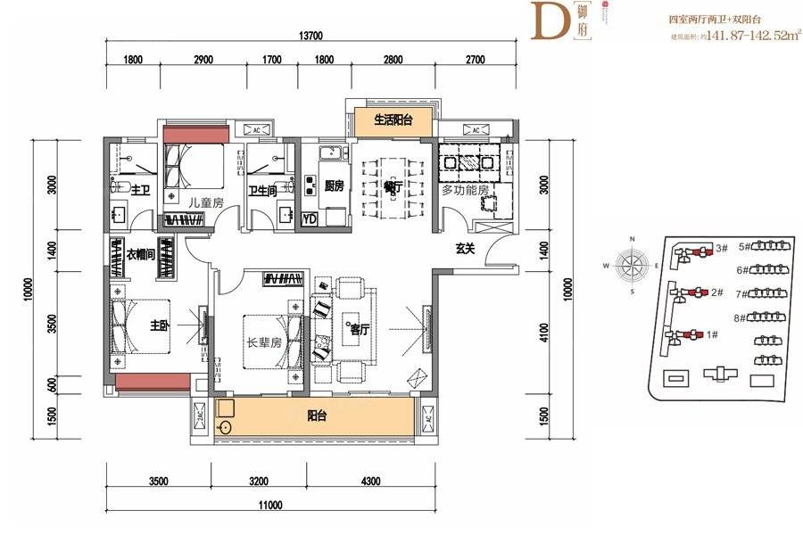
    4室2厅1厨2卫

    建筑面积142.52㎡

  • 4室2厅1厨2卫

    4室2厅1厨2卫

    建筑面积142.52㎡

  • 4室2厅1厨2卫

    4室2厅1厨2卫

    建筑面积142.52㎡

  • 4室2厅1厨2卫

    4室2厅1厨2卫

    建筑面积142.52㎡

楼盘相册

楼盘详情

占地面积: 209667㎡
建筑面积: 613800㎡
容积率: 2.3 
绿化率: 35%
楼栋总数: 31栋
总户数: 3891户
物业公司: 广东铂美物业服务股份有限公司
物业费: 住宅2.5元/㎡·月  此处物业费仅供参考,具体请咨询开发商
物业费描述: 住宅:2.5元/㎡/月 此处物业费仅供参考,具体请咨询开发商
停车位: 暂无资料
停车位描述: 3716个
楼层状况: 13#31层 15#33层 16#32层,1-3#为31层,5-7#为7层