依澜雅居

6300元/㎡
开发商 : 肥东繁华大道与习友路交口向南700m,南艳湖大门正东侧
开盘时间 : 暂无资料暂无资料
类型 : 住宅
主力户型 :二居室,三居室,四居室
楼盘地址 : 肥东繁华大道与习友路交口向南700m,南艳湖大门正东侧
苦苦寻找楼盘信息?不如一个电话全部搞定

13815746062

楼盘动态

查看更多
  • 楼盘动态

    依澜雅居动态

    2025-05-16

    依澜雅居。容积率2.5。依澜雅居项目为多层,高层。毛坯交房。在售户型有:89平-158平3居-6居。依澜雅居公交路线:31、57、150,602、235;...

  • 楼盘动态

    依澜雅居详情

    2025-05-16

    依澜雅居。毛坯交房。物业费:1.2元/㎡·月。容积率2.5。依澜雅居位于:繁华大道与习友路交口向南700m,南艳湖大门正东侧。依澜雅居共1691户。依澜雅居项目为多层,高层。在售户型有:89平-158平3居-6居。公交路线:31、57、150,602、235;...

户型介绍

  • 全部户型
  • 6室3厅1厨5卫
  • 3室2厅1厨1卫
  • 3室2厅1厨1卫
  • 3室2厅1厨2卫
  • 6室3厅1厨5卫

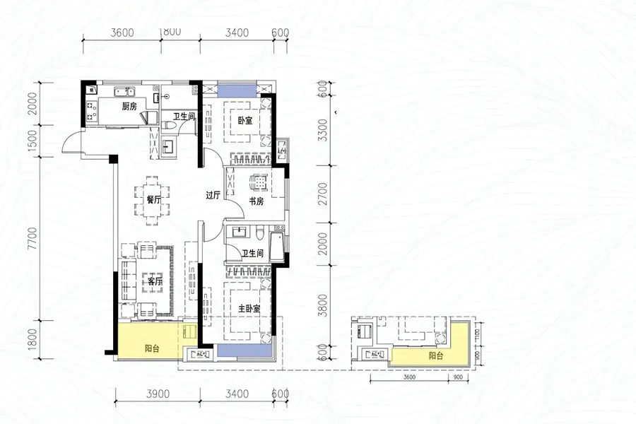
    3室2厅1厨2卫

    建筑面积115㎡

  • 3室2厅1厨1卫

    3室2厅1厨2卫

    建筑面积115㎡

  • 3室2厅1厨1卫

    3室2厅1厨2卫

    建筑面积115㎡

  • 3室2厅1厨2卫

    3室2厅1厨2卫

    建筑面积115㎡

楼盘详情

占地面积: 77986.84㎡
建筑面积: 239115.1㎡
容积率: 2.5 
绿化率: 40%
楼栋总数: 暂无资料栋
总户数: 1691户
物业公司: 杭州中广物业管理服务有限公司
物业费: 住宅1.2元/㎡·月  此处物业费仅供参考,具体请咨询开发商
物业费描述: 高层1.2元/月/平米,多层1.3元/月/平米 此处物业费仅供参考,具体请咨询开发商
停车位: 暂无资料
停车位描述: 共1218个机动车位,其中地上974个,地下244个
楼层状况: 2#、3#、4#、5#、7#、8#、9#层高为3米,6#层高为3.15米,10#、11#、12#、13#、14#层高为2.9米;楼板厚度为120mm;高层净高为2.78米,多层净高为2.88米,内墙厚度为100mm或200mm;
依澜雅居位于合肥市经开海恒,由观澜置业建成,总建筑面积239115,总占地面积77986,共计房屋649户,小区物业公司为杭州中广物业管理服务有限公司。