中欧|青特滨湖国际

12500元/㎡
开发商 : 城阳源路与泰鸿路交汇处
开盘时间 : 2024年12月24日2024年12月24日
类型 : 住宅
主力户型 :二居室,三居室,四居室
楼盘地址 : 城阳源路与泰鸿路交汇处
苦苦寻找楼盘信息?不如一个电话全部搞定

13815746062

楼盘动态

查看更多

户型介绍

  • 全部户型
  • 4室2厅1厨2卫
  • 4室2厅1厨2卫
  • 4室2厅1厨2卫
  • 4室2厅1厨2卫
  • 4室2厅1厨2卫

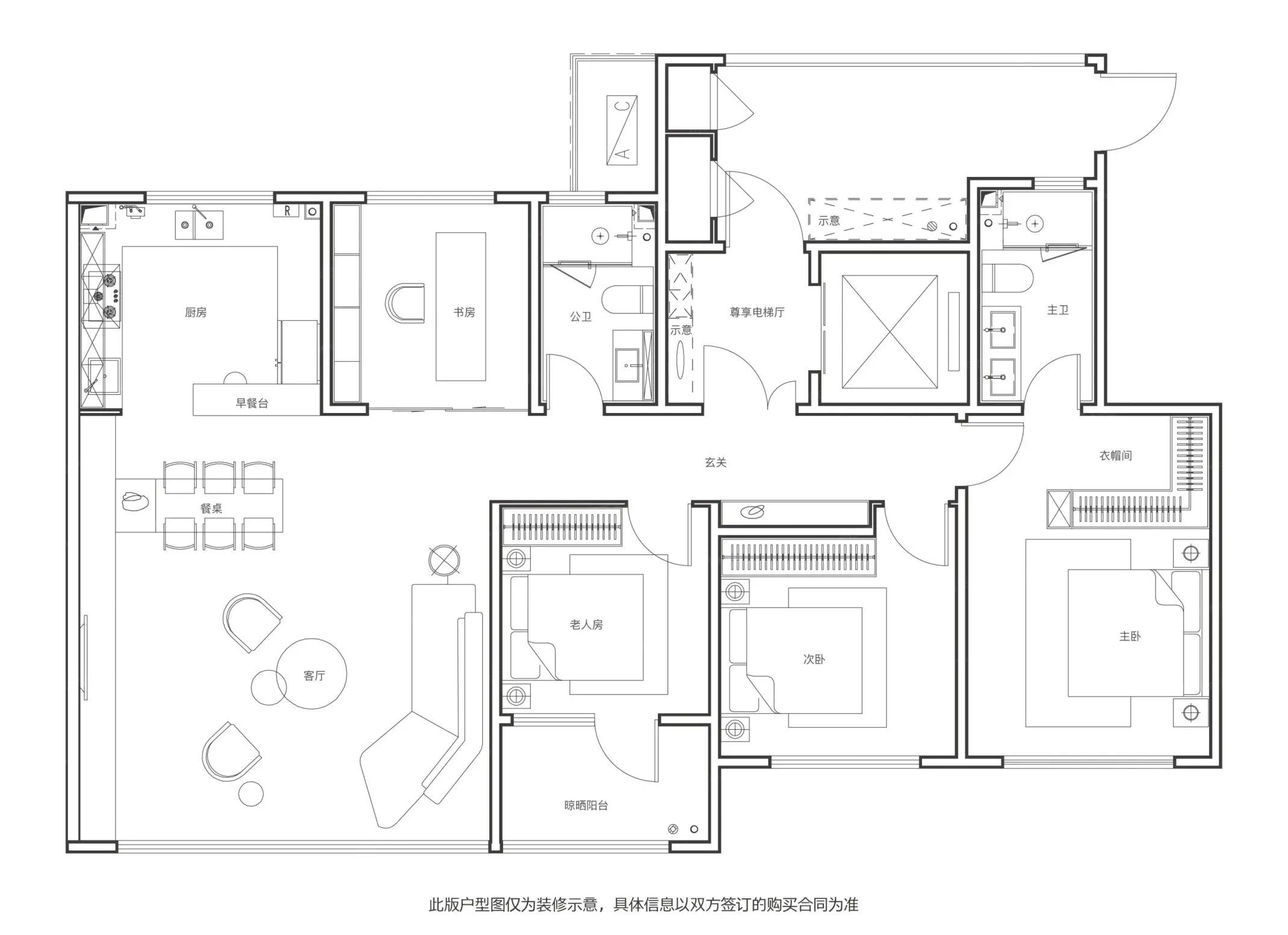
    4室2厅1厨2卫

    建筑面积160㎡

  • 4室2厅1厨2卫

    4室2厅1厨2卫

    建筑面积160㎡

  • 4室2厅1厨2卫

    4室2厅1厨2卫

    建筑面积160㎡

  • 4室2厅1厨2卫

    4室2厅1厨2卫

    建筑面积160㎡

楼盘相册

楼盘详情

占地面积: 77206㎡
建筑面积: 154413.88㎡
容积率:
绿化率: 30%
楼栋总数: 18栋
总户数: 975户
物业公司: 青岛汇豪物业服务有限公司
物业费: 住宅3.02元/㎡·月  此处物业费仅供参考,具体请咨询开发商
物业费描述: 住宅3.02元/㎡·月 商业6元/㎡·月 此处物业费仅供参考,具体请咨询开发商
停车位: 1559个
停车位描述: 1559个,地上180,地下1379;车位比1:1.6
楼层状况: 一期共10栋楼,15-17层小高层 二期规划出炉,建设13-17层小高层8栋住宅(5栋12F+4栋13F+4栋14F+2栋17F)+1-3F层沿街商业以及11层的办公楼。