城建电建汤湖观筑

11500元/㎡
开发商 : 武汉统建城市开发有限责任公司
开盘时间 : 2022年4月已推出6、7号楼2022年4月已推出6、7号楼
类型 : 住宅
主力户型 :二居室,三居室,四居室
楼盘地址 : 经济开发区车城东路与沌口路交汇处(汤湖公园旁)
苦苦寻找楼盘信息?不如一个电话全部搞定

13815746062

楼盘动态

查看更多
  • 楼盘动态

    武汉城建·电建|汤湖观筑10、11号楼已拿预售证,主推建面约165、194、216平大平层,毛坯备案均价约13200元/平,目前主推建面约112-136㎡高层,均价11500元/㎡,洋房建面约191、196㎡户型,均价15600元㎡,敬请关注!武汉城建·电建|...

  • 楼盘动态

    武汉城建·电建|汤湖观筑10、11号楼已拿预售证,主推建面约165、194、216平大平层,毛坯备案均价约13200元/平,目前主推5号楼建面约112、136㎡高层,均价12500元/㎡,前期1-4#、8#楼建面112-136㎡房源在售;洋房12、13、14号...

户型介绍

  • 全部户型
  • 4室2厅1厨3卫
  • 4室2厅1厨3卫
  • 3室2厅1厨2卫
  • 3室2厅1厨2卫
  • 4室2厅1厨3卫

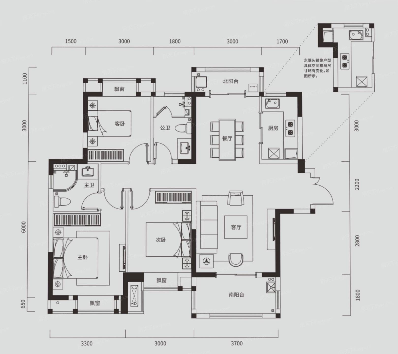
    3室2厅1厨2卫

    建筑面积122㎡

  • 4室2厅1厨3卫

    3室2厅1厨2卫

    建筑面积122㎡

  • 3室2厅1厨2卫

    3室2厅1厨2卫

    建筑面积122㎡

  • 3室2厅1厨2卫

    3室2厅1厨2卫

    建筑面积122㎡

楼盘相册

楼盘详情

占地面积: 63000㎡
建筑面积: 210000㎡
容积率: 2.3 
绿化率: 30%
楼栋总数: 13栋
总户数: 711户
物业公司: 武汉地产集团东方物业管理有限公司
物业费: 住宅2.8元/㎡·月  此处物业费仅供参考,具体请咨询开发商
物业费描述: 2.8元/㎡/月 此处物业费仅供参考,具体请咨询开发商
停车位: 暂无资料
停车位描述: 车位总数: 1413(一期)
楼层状况: 28层、31层,两梯三户