蓝光雍锦府

32000元/㎡
开发商 : 天津蓝光浩坤房地产开发有限公司
开盘时间 : 2024-07-132024-07-13
类型 : 住宅
主力户型 :二居室,三居室,四居室
楼盘地址 : 河北王串场五号路与富强道交口
苦苦寻找楼盘信息?不如一个电话全部搞定

13815746062

楼盘动态

查看更多
  • 楼盘动态

    蓝光雍锦府项目售楼处位于河北区王串场五号路与富强道交口;小区容积率1.7,项目总户数280户,全地下车位351个,物业费3.98元/平米。蓝光雍锦府项目均价32000元/平米,户型面积区间80-130平米。以上信息仅供参考,详情请咨询售楼处。

  • 楼盘动态

    蓝光雍锦府项目均价约32000元/平,在售户型有80平-130平的2居、3居、4居,毛坯交房。预计交房时间2023年10月31日。以上信息仅供参考,详情请咨询售楼处。

户型介绍

  • 全部户型
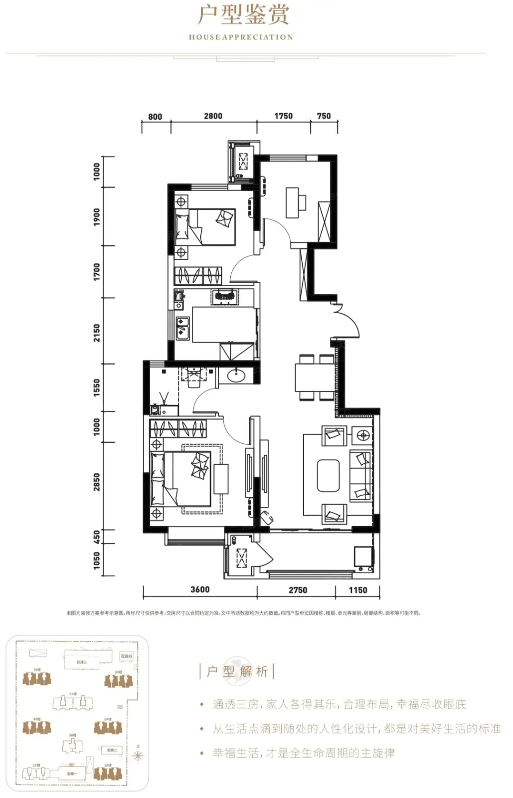
  • 2室2厅1厨1卫
  • 2室2厅1厨1卫
  • 4室2厅1厨2卫
  • 4室2厅1厨2卫
  • 2室2厅1厨1卫

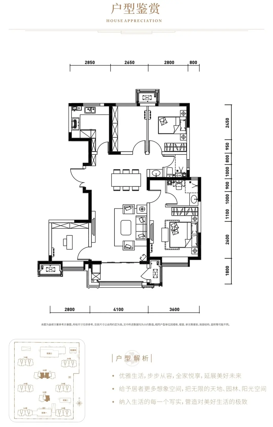
    4室2厅1厨2卫

    建筑面积130㎡

  • 2室2厅1厨1卫

    4室2厅1厨2卫

    建筑面积130㎡

  • 4室2厅1厨2卫

    4室2厅1厨2卫

    建筑面积130㎡

  • 4室2厅1厨2卫

    4室2厅1厨2卫

    建筑面积130㎡

楼盘相册

楼盘详情

占地面积: 27612.3㎡
建筑面积: 49489.74㎡
容积率: 1.7 
绿化率: 35%
楼栋总数: 8栋
总户数: 280户
物业公司: 重庆嘉宝管理顾问有限公司天津分公司
物业费: 住宅3.98元/㎡·月  此处物业费仅供参考,具体请咨询开发商
物业费描述: 物业费3.98元/㎡·月 此处物业费仅供参考,具体请咨询开发商
停车位: 暂无资料
停车位描述: 共351个车位,全部为地下车位,车位配比1:0.8
楼层状况: 共8栋,7-12层到顶