矩阵国际

20000元/㎡
开发商 : 莱茵开发商
开盘时间 :
类型 : 写字楼
主力户型 :一居室,二居室
楼盘地址 : 杭州市拱墅区余杭塘路515号
苦苦寻找楼盘信息?不如一个电话全部搞定

4008883115,5258

楼盘动态

查看更多
  • 楼盘动态

    项目在售中..

    2021-08-26

    <p>城西银泰旁稀缺性房源<br />纯一楼商铺+二层写字楼<br />建筑后现代主义&ldquo;Free Box&rdquo;风格永不落时,余杭塘河丰潭河双河环绕,风景宜人、风水绝佳,40米挑高大堂,6大独立艺术办公大堂,4.2米卓越层高,三菱重工品牌VRV中央空调,地铁2号线、5号线双地铁交叉,交通便利,城西商圈核心位置,周边小区密集且成熟,住宅包围商业,消费人群多元化,地理位置十分成熟,园区自带6000+上班人</p>

  • 楼盘动态

    <p>学校:浙大紫金港校区、保俶塔实验学校分校,学军小学紫金港分校<br />商业:城西银泰中心、印象城、沃尔玛、物美超市、新武林商业中心<br />银行:杭州银行益乐支行、杭州联合银行丰潭支行、兴业银行杭州城西支行、中国银行杭州世纪新城支行、中国农业银行杭州竞舟支行<br />医院:省立同德医院、规划浙江医院三墩分院、规划浙大国际医疗中<br />公交路线: 轨道交通描述:2号线丰潭路站、5号线 公共交通:37路、75路可达西斗门站,37路、73路可至政苑小区站</p>

  • 楼盘动态

    矩阵国际价格

    2021-08-26

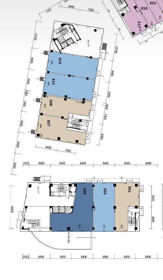
    <p>商铺现均价: 4万 &nbsp; &nbsp; &nbsp;总价400万起<br />写字楼现均价: 2.5万&mdash;2.8万 写字楼总价: 210万起</p> <p>&nbsp;</p> <p>商铺还有6套,写字楼还有40多套整层12套640方到945方</p>

  • 楼盘动态

    <p>莱茵矩阵国际项目位于杭州城西申花板块,东南两面紧邻余杭塘河,是体量达8万方的写字楼建筑群。目前可售可租。在售建面约100-9000平,单价约35000元/平。目前租金为4.5元/平/日,得房率为约75%左右。以上信息仅供参考,详细信息请咨询售楼处。</p>

户型介绍

  • 全部户型
  • 户型1
  • 户型1

    户型1

    建筑面积0㎡

楼盘相册

楼盘详情

产权年限: 40年
建筑类别: 写字楼 商铺
交房日期: 2014年交付的现铺
交付标准: 毛坯
层高与总高: 层高: 4.2米
占地面积: 暂无资料
建筑面积: 暂无资料
物业费: 商铺物业费10块8
商铺面积: 96方—242方 商铺原均价: 5.5万 商铺现均价: 4万 商铺层高: 层高4.95米 商铺租金: 4块—5.7块 商铺物业费10块